00件
最近見た物件
00件
検討リスト
熊谷市の不動産|でざいん不動産 > (戸建(売買))地域から探す > 児玉郡上里町 > Cradle garden上里町大御堂第4 【平屋】新築住宅 > 2号棟
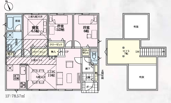
\吹抜+ロフトのある平屋/土地92坪ー駐車並列3台可■ゆとりのあるお庭☆彡
▽防犯カメラ設置
▽耐震+制震の地震に強い家
▽LDK19帖
▽対面キッチン
現地案内会 毎週土日祝











(※元利均等方式 金利5.00%まで ※返済年数5~50年まで入力できます)
(※ボーナスは年2回で計算しています。1000万円まで入力できます)
(※物件購入時、その他諸費用が発生する場合がございます)
| 所在地 | 埼玉県児玉郡上里町大字大御堂263-3 | ||
|---|---|---|---|
| 交通 | |||
| 間取り/詳細 |
3LDK/ LDK 19.0帖 1室/洋室 6.5帖 1室/洋室 6.0帖 1室/洋室 5.2帖 1室 |
建物面積(坪数) | 78.57㎡(23.76坪) |
| 価格 | 2,180万円 | ||
| 駐車場/月額料金 | 有/0円 | ||
| 土地の敷金/保証金 | -/- | 借地料/借地期間 | -/- |
| 土地権利 | 所有権 | 土地面積(坪数) | 307.93㎡(93.14坪) |
| 傾斜地部分面積 | - | 路地状敷地 | - |
| 私道負担面積/セットバック | -/無 | 高圧線下面積 | - |
| 地目/地勢 | 宅地/平坦 | 接道状況 | 一方(南 公道 4.1m) |
| 建ぺい率/容積率 | 60%/164% | 用途地域 | 無指定 |
| 都市計画 | 非線引区域 | 種別/構造 | 新築一戸建/木造 |
| 階建 | 1階建 | 築年月(築年数) | 2025年 12月 (新築) |
| 総区画数/販売区画数 | 2区画/1区画 | 向き | 南 |
| 現況 | 完成済み | その他の法令上の制限 | 景観法 |
| 取引態様/引渡時期 | 仲介/即時 | 建築確認番号 | 第25UDI1W建07066号 |
| 物件番号 | 99140315 | 取引条件の有効期限 | 2026年03月20日 |
| 設備条件 |
|
||
| 備考 | 明るい生活を送るには、快適な住環境が必要不可欠です。ぜひ当社で素敵で快適なお家探しをしていきませんか。当社は数多くの不動産情報を取り扱っております(^_^) | ||
| 取扱会社 |
|
||
| QRコード |
このQRコードを読み取ることで、スマホでも物件情報を確認できます。 |
||
※地図上に表示される物件の位置は付近住所に所在することを表すものであり、実際の物件所在地とは異なる場合がございます。
Cradle garden上里町大御堂第4 【平屋】新築住宅に関するこだわり条件から探す
児玉郡上里町以外の市区町村から探す
児玉郡上里町にある駅から探す
Cradle garden上里町大御堂第4 【平屋】新築住宅周辺の駅から探す